Eco apartments
Height restrictions 11.4 and 14.8 m
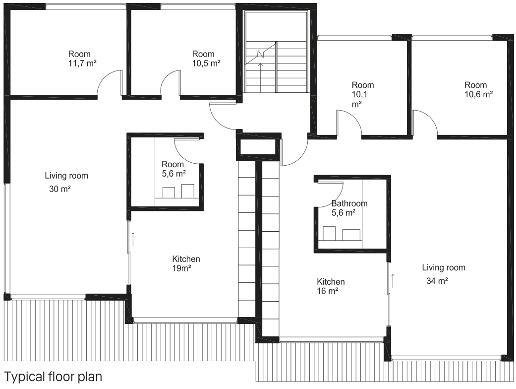
80 m2 net area / 3-storied apartment building / 2 bedrooms / living room / bathroom / kitchen
65 m2 net area / 3-storied apartment building / 1 bedroom / living room / bathroom / kitchen
45 2 net area / 3-storied apartment building / bedroom or kitchen / living room / bathroom
 
        