Villa

Villa

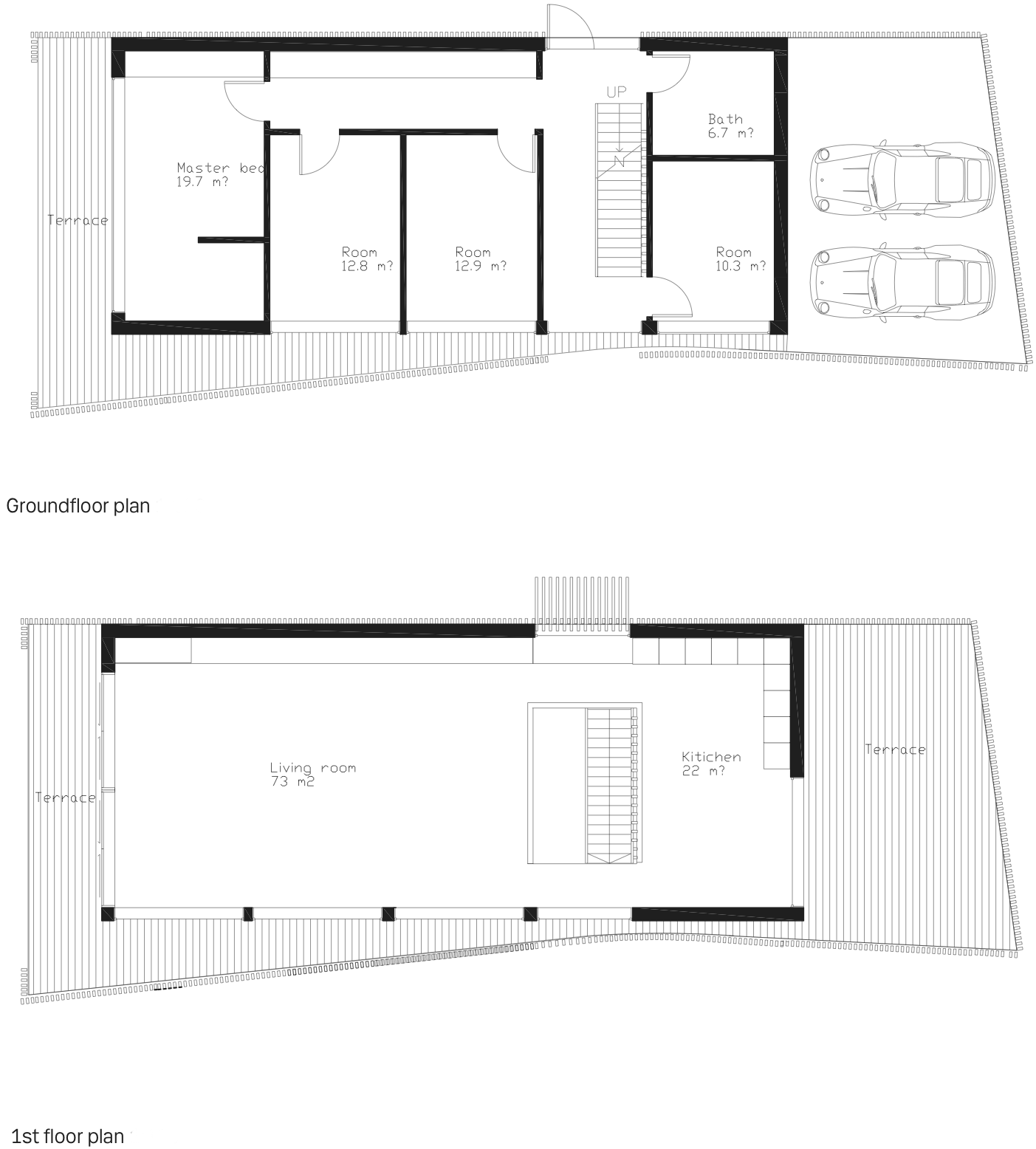
190 m2 net area

Height restriction 8 m

2.5 floors

4 bedrooms / living room / 2 bathrooms / kitchen